Népi-urbánus újrakezdés
A lakóépület egy Norvégiából a Balaton-felvidékre költöző 4 fős család otthona. A tervezési szempontok a táj közeli életérzés és a kortárs szemlélet volt. Az épület szabadon álló, hagyományos tömegű, „T” alaprajzi sémába illesztett, nyeregtetős, a közös élettér felett nyitott fedélszékkel. A homlokzatok az utca felé zártak, a hátsó kert felé megnyílnak, tornáccal és átmeneti fedett-nyitott terekkel kapcsolódnak természethez.
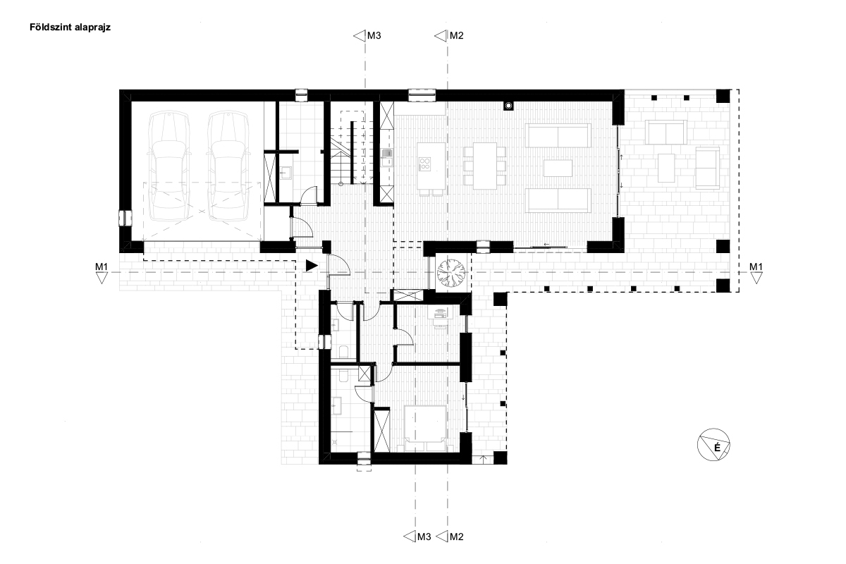
Az átmeneti terek szervesen illeszkednek az épület használatához és a tájoláshoz. Az épületbe érkezve kis belső kert fogad, amely végig vezeti a szemünket a kert irányába. (Lásd.: Földszint alaprajz) Az egybefüggő konyha, étkező, nappali terület a család fő élettere, ami fedett-nyitott terasszal egészül ki. A fedett-nyitott terasz szerkezetében és működésében összeköttetésben áll az épület dél-délnyugati oldalán található tornác tetőszerkezetével és a visszahúzott épülettömegekkel. A nyílászárók előtt húzódó kő és fa oszlopokkal határolt egybefüggő átmeneti tér árnyékolást és életteret biztosít a kert és az épület között.
A hagyományos építészeti elemek újra értelmezésével tervezett terek, a táj és hely kiegészítéseként fogalmazódnak meg. Az épület harmonikus együttélésre törekszik környezetével és a használóival.
Projekt adatok:
Megbízó: Nem nyilvános
Típus: Megvalósult
Helyszín: Felsőörs, Magyarország
Megvalósítás éve: 2025
Tervezési terület: 250 m2
Projekt csapat:
Építészet: Kovács D. Barna
Tartószerkezet: Horváth Beáta, Böhm Csaba
Épületgépészet: Bagi Barnabás
Épületfotó: Homoki István









